• POČETNA
  • TEHNIČKI OPIS
  • TIPOVI STANOVA
  • NOVI OBJEKAT - 52R
  • LOKACIJA
  • KONTAKT

TIPOVI STANOVA

Tip 1

TIP 1 - garsonjera - objekat 52R

Objekat 52R
Ukupno (pr): 29,15
Ukupno: 30,93
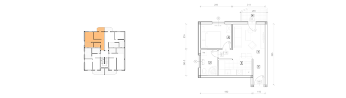
NUMERACIJA OBJEKATA
Tip 2

TIP 2 - jednosoban

Ukupno 39 stanova u objektima 1, 2, 2A, 3, 4, 5, 6
Ukupno (pr): 34,82
Ukupno: 37,08
NUMERACIJA OBJEKATA
Tip 3

TIP 3 - jednosoban

Ukupno 59 stanova u objektima 1, 2, 2A, 3, 3A, 4, 4A, 5, 5A, 6, 7, 7A, 8, 8A, 9.
Ukupno: 32,99
NUMERACIJA OBJEKATA
Tip 4

TIP 4 - jednosoban

Ukupno 59 stanova u objektima 1, 2, 2A, 3, 3A, 4, 4A, 5, 5A, 6, 7, 7A, 8, 8A, 9.
Ukupno: 32,88
NUMERACIJA OBJEKATA
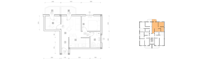
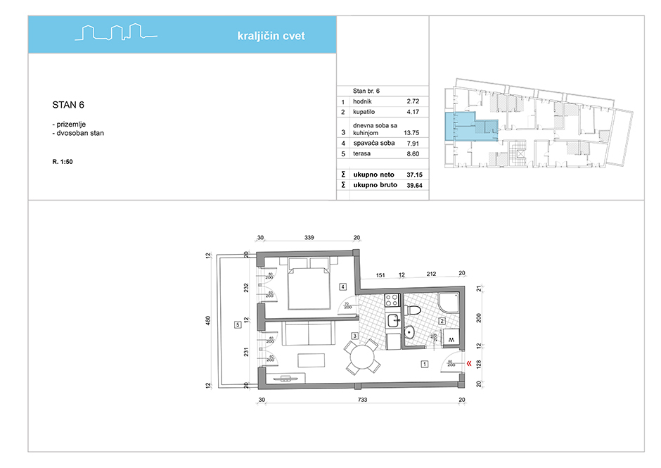
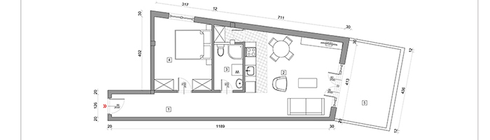
Tip 5

TIP 5 - dvosoban - objekat 52R

Objekat 52R
Ukupno (pr): 37,15
Ukupno: 39,64
NUMERACIJA OBJEKATA
Tip 6

TIP 6 - dvosoban

Ukupno 4 stana u objektu 6A.
Ukupno: 40,59
NUMERACIJA OBJEKATA
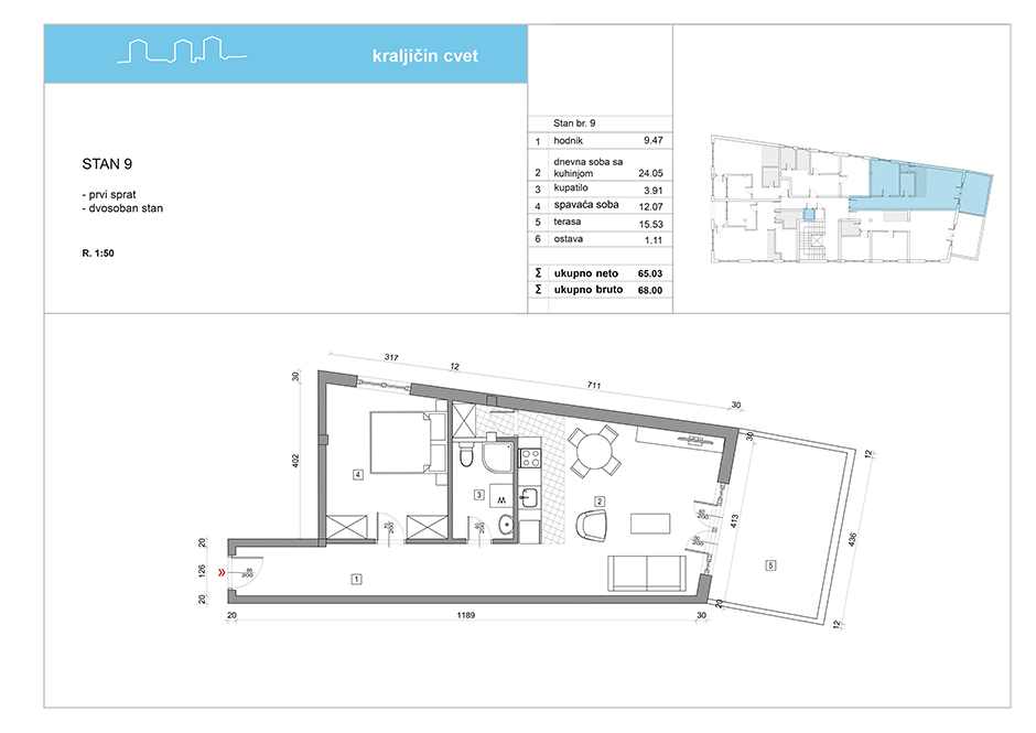
Tip 7

TIP 7 - dvosoban - objekat 52R

Objekat 52R
Ukupno (pr): 65,03
Ukupno: 68,00
NUMERACIJA OBJEKATA
Tip 8

TIP 8 - trosoban - objekat 52R

Objekat 52R
Ukupno (pr): 79,25
Ukupno: 83,45
NUMERACIJA OBJEKATA
Tip 9

TIP 9 - trosoban - objekat 52R

Objekat 52R
Ukupno (pr): 79,25
Ukupno: 83,45
NUMERACIJA OBJEKATA
Tip 10

TIP 10 - penthouse - objekat 52R

Objekat 52R
Ukupno (pr): 157,15
Ukupno: 178,28
NUMERACIJA OBJEKATA
    • Numeracija objekata
    • Tehnički opis
    • Galerija
  • DODATNE INFORMACIJE

    • Ukoliko želite detaljnije informacije ili prezentaciju objekta, molimo Vas da nam pošaljete mail na adresu:
    • mail
Kraljičin cvet. 2018.
  • Kraljičin cvet